• WORK
  • About
  • Contact

serena terzian

interior architect & designer

  • WORK
  • About
  • Contact
1.jpg
2.jpg
Ground Floor Plan
Ground Floor Plan
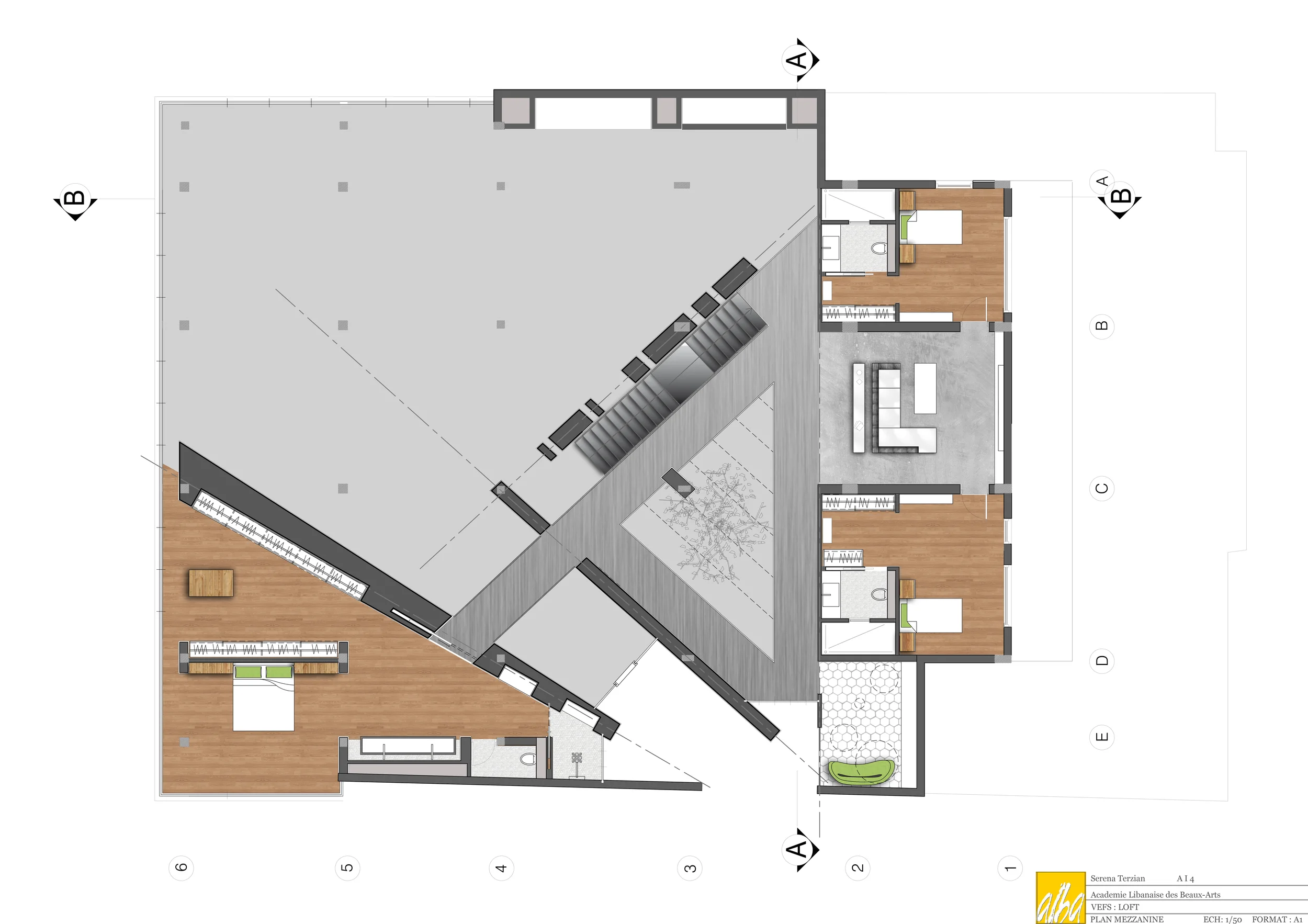
First Floor Plan
First Floor Plan
Sections
Sections
Furniture Suggestions
Furniture Suggestions
Ground Floor Plan First Floor Plan Sections Furniture Suggestions

Nature Loft

This project required each student to design a loft space for a family.

The architectural approach of this project was to start with an oblique axis for the entrance of the space. The entrance is narrow and the hall gets bigger to reach the living area. On one of the sides is an indoor "patio" with a tree that serves as a hall that connects the stairs, kitchen, and family areas. On the other side is the more isolated fashion atelier of the mother. 

The loft has two floors. On the main floor there is the isolated fashion atelier, the main living room, and the family space that is connected together by this indoor patio and serene setting. 
On the upper floor are the master bedroom, and 2 children's bedrooms, with a small living room that connects these two together.

4th year Master project - ALBA 2014 

Programs used : Autocad, 3d max, photoshop